长沙一品楼品凤楼论坛51龙凤茶楼论坛网深圳 ,凤楼阁论坛官网入口网址全国楼凤app软件 ,51龙凤茶楼论坛详情,万花楼59351

河南蚁族装饰工程有限公司服务热线400-066-6292

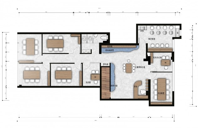
儿童画室

【设计风格】:现代北欧

【案例格局】:220㎡ 


开放休闲阅读区


书柜一角


前台


理论教室


手工教室


陶艺教室

平面布局图



河南蚁族装饰工程有限公司专注连锁店铺装修15年致力于连锁品牌社会价值


【返回列表】 / 【首页】

本文标题:儿童画室

本文链接:http://mabian.ykpenft.cn/news/show-906.html

Tags:辅导室装修,绘画室装修,店面装修,教育辅导机构装修,


上一篇:没有了

下一篇:艺术培训教室

相关资讯

  • 冒菜西施到底有何魅力?

    冒菜作为成都的人气美食,凭借鲜香麻辣的味道和量大实惠的特点吸粉无数。最先的冒菜都是推着小摊车出来销售的,随着经济的发展,环境的变化,冒菜也顺应时代潮流将经营模式进行了改变与规范,冒菜在全国各地都享有名气。今天我们就来看看冒菜西施的故事:

    2023-5-8 9:40:32
  • 这个馅饼吃一口停不下来——麦多馅饼

    麦多馅饼——是大多数人再熟悉不过的面点小吃,它承载着80后、90后的青春时代印记,每每记起在“麦多馅饼”门店前排起长龙等候出炉,就足够我们回味无穷、回忆长长。青春已然不再,但是伴随着我们成长的小店依然还在!今天我们来看看它的故事:

    2023-4-12 11:35:12
  • 营养不伤胃 口味惹人爱——龙门花甲

    春天的风逐渐吹暖,唤醒了人们对夜市的怀念。每到这个时候,各种海鲜轮番登场,花甲粉就是夜市上的“宠儿”。锡纸花甲,也叫龙门花甲,是现在年轻人十分喜欢吃的特色小吃类型,这样的花甲粉,最少容易撩动人心,留住城市的味道。今天我们开看看它的故事:

    2023-4-11 10:39:20
  • 这个肉蟹煲不会没有听说过吧

    到螃蟹上市的季节,各大的主题餐厅与都推出了美味的螃蟹,常见的螃蟹烹饪方式莫过于清蒸和红烧,今天带你看下不一样的,像米小姐肉蟹煲不仅仅拥有它原本的口味,还可以制作各种口味的肉蟹煲,还受到了广泛大众的青睐。一起来看看吧:

    2023-4-9 10:24:42

设计大师

装修该花多少钱?免费报价/快速报价

服务热线

400-066-6292

13526824338

功能和特性

价格和优惠

获取内部资料

扫一扫联系微信客服

扫一扫联系微信客服